lieu               GERS

 

mission       complète

 

surface        196m²

 

 

 

Le terrain situé sur une ligne de crête est à moins de 5 minutes du centre ville.

Le site, de grande qualité paysagère, est caractérisé par la présence d’une maison existante s’inspirant de l’architecture des années 20 et de nombreux grands arbres. Il s’ouvre au Sud en direction des Pyrénées.

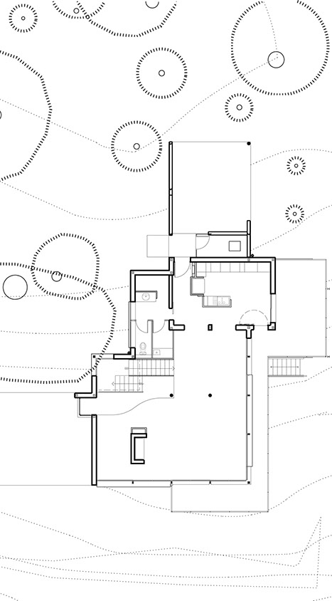
Le parti architectural adopté développe un plan en équerre issu de l’analyse du site, des exigences du programme et des contraintes fonctionnelles, technique et environnementales du lieu.

Les surfaces sont réparties sur deux niveaux.

Les espaces jours sont situés en rez-de-chaussée accessible au niveau de l’accès véhicules alors que les espaces nuit sont situés en rez-de-jardin. L’espace de liaison est ouvert et assure la continuité spatiale entre les deux niveaux. Largement ouverte au Sud-Est sur le jardin et au Sud-Ouest  sur le grand paysage, la maison bénéficie de vues jusqu’aux Pyrénées.

Fermée au Nord-Est (locaux techniques, abris véhicules), elle est adossée à un grand conifère protecteur au Nord-Ouest.

Le parti constructif allie techniques et matériaux complémentaires (briques mono mur, béton, métal, verre, bois…) pour servir une architecture étirée qui se veut discrète dans le paysage.

 

bruggeman dessein d'architecture

retour accueil ▲